Фестиваль «Энергия скорости»
-
ДиМRost
- Администратор
- Сообщения: 7154
- Зарегистрирован: 04 дек 2008, 12:56
- Мой автомобиль: Yeti
- Мой автомобиль: Большой
- Год выпуска авто: 2014
- Двигатель: 210 лошадок
- Откуда: СЖМ
- Контактная информация:
Фестиваль «Энергия скорости»
Выставочный фестиваль «Энергия Скорости»
Дата проведения мероприятия: 20 марта 2011 г.
Место проведения мероприятия: ТРК «Золотой Вавилон», г. Ростов-на-Дону, ул. Малиновского, 25
Организаторы: «Праздничный BaZarr», ТРК «Золотой Вавилон».
Партнеры: «Альтеза-клуб», BMW- клуб, «ToyotaBB-клуб», «Мазда-клуб», «Хонда-Фит Рашн Клаб», Официальный клуб «Цивик», Школа Профессиональных каскадеров, автошкола «Автоград».
20-го марта 2011 г. на одной из самых крупных площадок города впервые в Ростове состоится яркое беспрецендентное событие-шоу: около 200 участников программы и более 3000 посетителей.
http://www.gold-babylon.ru/#/news/festival-energy
Участвуем?
Дата проведения мероприятия: 20 марта 2011 г.
Место проведения мероприятия: ТРК «Золотой Вавилон», г. Ростов-на-Дону, ул. Малиновского, 25
Организаторы: «Праздничный BaZarr», ТРК «Золотой Вавилон».
Партнеры: «Альтеза-клуб», BMW- клуб, «ToyotaBB-клуб», «Мазда-клуб», «Хонда-Фит Рашн Клаб», Официальный клуб «Цивик», Школа Профессиональных каскадеров, автошкола «Автоград».
20-го марта 2011 г. на одной из самых крупных площадок города впервые в Ростове состоится яркое беспрецендентное событие-шоу: около 200 участников программы и более 3000 посетителей.
http://www.gold-babylon.ru/#/news/festival-energy
Участвуем?
- Police
- Сообщения: 2027
- Зарегистрирован: 20 апр 2010, 10:23
Re: Фестиваль «Энергия скорости»
а каким образом мы сможем принять участие?
- Andrik
- Сообщения: 1756
- Зарегистрирован: 16 дек 2009, 22:43
Re: Фестиваль «Энергия скорости»
Я предлагаю участвовать. Во первых продвинем наш клуб, во вторых Дима продвинет магазин, в третьих просто посчитаем как очередную сходку и повеселимся. В идеале хорошо бы выставить весь модельный ряд Шкоды.
Более подробную информацию Дима выложит завтра после собрания.
Более подробную информацию Дима выложит завтра после собрания.
-
ДиМRost
- Администратор
- Сообщения: 7154
- Зарегистрирован: 04 дек 2008, 12:56
- Мой автомобиль: Yeti
- Мой автомобиль: Большой
- Год выпуска авто: 2014
- Двигатель: 210 лошадок
- Откуда: СЖМ
- Контактная информация:
Re: Фестиваль «Энергия скорости»
Из того что я знаю предварительно.
Специально для автоклубов будет выделена площадка на 80 машиномест.
Машины так сказать для показать. Среди участников клубного движения будут проводиться конкурсы, развлекухи.
Время проведения с утра (10-11 часов ) до вечера 16,00 примерно.
Завтра точнее расскажу после встречи с организаторами.
Специально для автоклубов будет выделена площадка на 80 машиномест.
Машины так сказать для показать. Среди участников клубного движения будут проводиться конкурсы, развлекухи.
Время проведения с утра (10-11 часов ) до вечера 16,00 примерно.
Завтра точнее расскажу после встречи с организаторами.
- Arsik
- Сообщения: 467
- Зарегистрирован: 20 сен 2009, 23:27
- Мой автомобиль: Октавия А5 FL
- Год выпуска авто: 2010
- Двигатель: 1,6 BSE
- Контактная информация:
-
Olesya
- Сообщения: 667
- Зарегистрирован: 29 июн 2010, 12:43
- Контактная информация:
Re: Фестиваль «Энергия скорости»
Я бы очень хотела попасть туда на зыринг, но пока ничего не могу сказать.
- Angel
- Сообщения: 1931
- Зарегистрирован: 01 янв 2002, 03:42
- Мой автомобиль: Fabia II
- Год выпуска авто: 2008
- Двигатель: 1.4
- Откуда: г.Ростов-на-Дону, ЗЖМ
- Контактная информация:
Re: Фестиваль «Энергия скорости»
я за это +100Andrik писал(а):Я предлагаю участвовать. Во первых продвинем наш клуб, во вторых Дима продвинет магазин, в третьих просто посчитаем как очередную сходку и повеселимся. В идеале хорошо бы выставить весь модельный ряд Шкоды.
Более подробную информацию Дима выложит завтра после собрания.
а вот с этим тоже интересно, в 10.00 поставишь машину и забрать ее так понимаю можно только по окончании всего мероприятия.aleut писал(а):Народ а че мы там в стоке будем делать
Дима, ждем информации более подробной!
- Police
- Сообщения: 2027
- Зарегистрирован: 20 апр 2010, 10:23
Re: Фестиваль «Энергия скорости»
Дима, ну что там? какая информация еще появилась?
-
Slava004
- Сообщения: 49
- Зарегистрирован: 09 ноя 2010, 12:04
- Контактная информация:
Re: Фестиваль «Энергия скорости»
Всем привет!!
Из опыта могу сказать, что машины нужны в обвесах и с автозвуком......
А так только в фигурном вождении поучавствовать, если оно будет.
Из опыта могу сказать, что машины нужны в обвесах и с автозвуком......
А так только в фигурном вождении поучавствовать, если оно будет.
- Police
- Сообщения: 2027
- Зарегистрирован: 20 апр 2010, 10:23
Re: Фестиваль «Энергия скорости»
Короче чувствую туда надо ехать на маршрутке с пузырем...
-
ДиМRost
- Администратор
- Сообщения: 7154
- Зарегистрирован: 04 дек 2008, 12:56
- Мой автомобиль: Yeti
- Мой автомобиль: Большой
- Год выпуска авто: 2014
- Двигатель: 210 лошадок
- Откуда: СЖМ
- Контактная информация:
Re: Фестиваль «Энергия скорости»
В общем мероприятие будет выглядеть след образом:
утром в 8 часов нужно поставить авто на площадку. Авто может быть эксклюзивным, чем то выделяться.
Либо что то на машине можно будет сделать, т.е. показать какие то выдающиеся способности авто.
В нашем случае, можно просто выставить несколько красивых авто - например белые октавии.
Либо поставить на площадку весь модельный ряд Шкоды.
Поставив машины на площадку в 8 утра (это для того чтобы к офиц открытию уже все было расставлено) и в 17,00 примерно забрать только.
Площадка с машинами будет огорожена чтобы никто из гостей не смог трогать машину. Т.е. только для посмотреть.
В 10,00 офиц открытие.
с 10,00 до 12,00 официальное представление участников по громкой связи. .т.е. об участниках будут рассказывать/представлять (нужно будет предоставить данные по машинам)
с 12,00 до 14,00 будет проводиться конкурсы среди посетителей и участников.
далее на спец площадке будут показательные заезды детей на учебных авто из автограда.
далее показательные заезды дрифтовых машин (опять же на спец площадке)
Закрытие...
Площадка для клубных машин будет огорожена и будет охраняться.
Каждый участник получает топливные карты от устроителей мероприятия.
Количество машин, которые мы можем предоставить. нужно будет решить до завтра.
Итак, вопрос.
Можем поставить 4 белые октавии ?
Или белые Октавии и белые Фабии?
Это будет выглядеть красиво. Поставим флаг рядом с машинами и на заборе, отгораживающего фестиваль от основной площадки паркинга тоже будут логотипы машин или клубов (это мы можем предоставить)
утром в 8 часов нужно поставить авто на площадку. Авто может быть эксклюзивным, чем то выделяться.
Либо что то на машине можно будет сделать, т.е. показать какие то выдающиеся способности авто.
В нашем случае, можно просто выставить несколько красивых авто - например белые октавии.
Либо поставить на площадку весь модельный ряд Шкоды.
Поставив машины на площадку в 8 утра (это для того чтобы к офиц открытию уже все было расставлено) и в 17,00 примерно забрать только.
Площадка с машинами будет огорожена чтобы никто из гостей не смог трогать машину. Т.е. только для посмотреть.
В 10,00 офиц открытие.
с 10,00 до 12,00 официальное представление участников по громкой связи. .т.е. об участниках будут рассказывать/представлять (нужно будет предоставить данные по машинам)
с 12,00 до 14,00 будет проводиться конкурсы среди посетителей и участников.
далее на спец площадке будут показательные заезды детей на учебных авто из автограда.
далее показательные заезды дрифтовых машин (опять же на спец площадке)
Закрытие...
Площадка для клубных машин будет огорожена и будет охраняться.
Каждый участник получает топливные карты от устроителей мероприятия.
Количество машин, которые мы можем предоставить. нужно будет решить до завтра.
Итак, вопрос.
Можем поставить 4 белые октавии ?
Или белые Октавии и белые Фабии?
Это будет выглядеть красиво. Поставим флаг рядом с машинами и на заборе, отгораживающего фестиваль от основной площадки паркинга тоже будут логотипы машин или клубов (это мы можем предоставить)
- Angel
- Сообщения: 1931
- Зарегистрирован: 01 янв 2002, 03:42
- Мой автомобиль: Fabia II
- Год выпуска авто: 2008
- Двигатель: 1.4
- Откуда: г.Ростов-на-Дону, ЗЖМ
- Контактная информация:
Re: Фестиваль «Энергия скорости»
Мне кажется было бы хорошо весь модельный ряд причем не только новые модели, ну ты же Дима знаешь, что никто не оставит авто с 8.00 до 17.00, да и весь модельный тоже проблемс...
-
ДиМRost
- Администратор
- Сообщения: 7154
- Зарегистрирован: 04 дек 2008, 12:56
- Мой автомобиль: Yeti
- Мой автомобиль: Большой
- Год выпуска авто: 2014
- Двигатель: 210 лошадок
- Откуда: СЖМ
- Контактная информация:
Re: Фестиваль «Энергия скорости»
попробую поговорить с Дилерами.
- Angel
- Сообщения: 1931
- Зарегистрирован: 01 янв 2002, 03:42
- Мой автомобиль: Fabia II
- Год выпуска авто: 2008
- Двигатель: 1.4
- Откуда: г.Ростов-на-Дону, ЗЖМ
- Контактная информация:
Re: Фестиваль «Энергия скорости»
Ты знаешь, я сейчас общалась с одним человечком по поводу этой движки, походу организаторы хотят сотворить что-то похожее как в Москве, т.к. они просят все клубы, которые каким-либо образом имеют отношение к авто выставиться, то бишь на данном этапе им нужна массовость не более.
- LEXX
- Сообщения: 816
- Зарегистрирован: 23 дек 2010, 22:41
- Мой автомобиль: На данный момент отс
- Откуда: г. Ростов-на-Дону
- Контактная информация:
Re: Фестиваль «Энергия скорости»
нужен весь модельный ряд белых шкод (SUPERB, OCTAVIA, FABIA, YETI, ROOMSTER)
Передвигаюсь на чем попадется
-
ДиМRost
- Администратор
- Сообщения: 7154
- Зарегистрирован: 04 дек 2008, 12:56
- Мой автомобиль: Yeti
- Мой автомобиль: Большой
- Год выпуска авто: 2014
- Двигатель: 210 лошадок
- Откуда: СЖМ
- Контактная информация:
Re: Фестиваль «Энергия скорости»
Само собой.
При этом они не просят денег за то чтобы кто то мог выставить свои машины для обозрения. Ну и призы участникам.
При этом они не просят денег за то чтобы кто то мог выставить свои машины для обозрения. Ну и призы участникам.
- Angel
- Сообщения: 1931
- Зарегистрирован: 01 янв 2002, 03:42
- Мой автомобиль: Fabia II
- Год выпуска авто: 2008
- Двигатель: 1.4
- Откуда: г.Ростов-на-Дону, ЗЖМ
- Контактная информация:
Re: Фестиваль «Энергия скорости»
Леша, а почему только белых? давайте по цвету не будем ограничиваться ))
-
ДиМRost
- Администратор
- Сообщения: 7154
- Зарегистрирован: 04 дек 2008, 12:56
- Мой автомобиль: Yeti
- Мой автомобиль: Большой
- Год выпуска авто: 2014
- Двигатель: 210 лошадок
- Откуда: СЖМ
- Контактная информация:
Re: Фестиваль «Энергия скорости»
Оля, поставишь свою Фабку?
Андрюха, поставишь Октавку?
Лёша, Суперба сможешь поставить?
Андрюха, поставишь Октавку?
Лёша, Суперба сможешь поставить?
- Angel
- Сообщения: 1931
- Зарегистрирован: 01 янв 2002, 03:42
- Мой автомобиль: Fabia II
- Год выпуска авто: 2008
- Двигатель: 1.4
- Откуда: г.Ростов-на-Дону, ЗЖМ
- Контактная информация:
Re: Фестиваль «Энергия скорости»
Дима, ничего не могу сказать были планы уехать в этих числах из города.
Кто у нас еще на фабах белых кроме Леси?
Кто у нас еще на фабах белых кроме Леси?
- LEXX
- Сообщения: 816
- Зарегистрирован: 23 дек 2010, 22:41
- Мой автомобиль: На данный момент отс
- Откуда: г. Ростов-на-Дону
- Контактная информация:
Re: Фестиваль «Энергия скорости»
суперб под вопросом, но не исключено
Надо на всякий случай искать запасной вариант
Надо на всякий случай искать запасной вариант
Передвигаюсь на чем попадется
- VINT_09
- Сообщения: 73
- Зарегистрирован: 25 май 2010, 09:14
- Откуда: Ростов-Батюшка
- Контактная информация:
-
ДиМRost
- Администратор
- Сообщения: 7154
- Зарегистрирован: 04 дек 2008, 12:56
- Мой автомобиль: Yeti
- Мой автомобиль: Большой
- Год выпуска авто: 2014
- Двигатель: 210 лошадок
- Откуда: СЖМ
- Контактная информация:
Re: Фестиваль «Энергия скорости»
я помню про Филю)))
получается у нас есть 4 машины белого цвета. остается только решить чтобы мы смогли выставить свои машины.
Подумайте пож-та на дату 20 марта сможете поприсутствовать целый день? Или оставить авто и потом забрать через несколько часов.
Давайте представим свой клуб на показ жителям Ростова!
получается у нас есть 4 машины белого цвета. остается только решить чтобы мы смогли выставить свои машины.
Подумайте пож-та на дату 20 марта сможете поприсутствовать целый день? Или оставить авто и потом забрать через несколько часов.
Давайте представим свой клуб на показ жителям Ростова!
-
ДиМRost
- Администратор
- Сообщения: 7154
- Зарегистрирован: 04 дек 2008, 12:56
- Мой автомобиль: Yeti
- Мой автомобиль: Большой
- Год выпуска авто: 2014
- Двигатель: 210 лошадок
- Откуда: СЖМ
- Контактная информация:
Re: Фестиваль «Энергия скорости»
Официальный пресс релиз
Время проведения мероприятия: 10.00-17.00
Место проведения мероприятия: ТРК «Золотой Вавилон», г. Ростов-на-Дону, ул. Малиновского, 72
Рекламное агенство «Праздничный BaZarr», при поддержке автомобильного журнала «Инфомобиль», «Альтеза-клуб», BMW-клуб, «ToyotaBB-клуб», компаний: Школа Профессиональных каскадеров, автошкола «Автоград» и многих других автомобильных компаний приглашают Вас присоединиться и стать партнером или участником фестиваля «Энергия Скорости».
Самая большая площадка города, яркое незабываемое шоу, около 200 участников программы, более 3000 посетителей, в программе: авто-тюнинг, аэрография, дрифт-шоу, а также шоу экстремальной езды - все то, что заставит содрогнуться зрителей от волнения и захлестнувших эмоций.
Цель проведения мероприятия.
Проведение интересного крупномасштабного мероприятия, культурного события. Создание информационного повода СМИ, привлечение большой аудитории, потенциальных потребителей.
Задачи, решаемые проектом.
Социальные:
- Проведение крупномасштабного мероприятия стимулирующего интерес публики к проектам социального характера.
- Привлечение внимания общественности к проблеме проявления взаимной вежливости водителей, а также культуре вождения, к проблеме неоправданного риска на дорогах, порой приводящему к серьезным отрицательным последствиям.
- Благотворительный сбор денежных средств на строительство спортивного комплекса для воспитанников детского дома.
Коммерческие:
- Проведение крупномасштабной рекламной кампании;
-Привлечение большого количества потенциальных потребителей товаров и услуг компаний, заявленных в проекте и, как следствие, увеличение объема продаж;
- Создание положительного имиджа компаний, участников акций;
- Проведение целенаправленных рекламных акций во время проведения мероприятия.
Программа мероприятия:
- выставка «Авто-тюнинг» - около 100 профессионально тюнингованных автомобилей предстанут перед глазами зрителей, поражая мощью мотора, оригинальностью форм, скоростными возможностями;
- Выставка «Аэрография»- искустно исполненные картины на корпусе автомобилей, буйство красок и оригинальность идей художников, все то, что обычно не встретишь на дорогах;
Специальный конкурс для всех желающих в рамках выставки- любой желающий может представить на суд зрителей свои непрофессиональные авторские работы: приветствуется оригинальность и новизна идей. Победитель конкурса ярко и оригинально расписавший свое авто на глазах у изумленной публики получит специальный приз от спонсоров и организаторов фестиваля. Особо приветствуется аэрография на корпусах стареньких авто;
- Демонстрация навыков экстремальной езды. Профессиональные каскадеры и гонщики продемонстрируют для гостей праздников специальные навыки вождения: дрифт-шоу, экстремальная езда, захватывающие трюки;
- Демонстрация навыков езды самых юных участников шоу- учеников детской автошколы «Автоград»;
- Специальная конкурсная программа для гостей шоу, а также розыгрыш призов для всех пришедших на праздник;
- Розыгрыш призов;
- Запись на Тест-Драйвы;
А так же: Выступление танцевальных коллективов, музыкальных групп, очаровательные девушки гоу-гоу, профессиональная фотосъемка для всех желающих, демонстрации видеороликов с показательных выступлений.
Предлагаем Вам принять участие в Авто-фестивале в качестве спонсора, генерального спонсора или партнера мероприятия.
Рекламная кампания:
1. Размещение информации об акции на ТВ-каналах «СТС», «Рен-ТВ», бегущая строка;
2. Размещение информации на радиостанциях
3. Размещение информации в периодических изданиях: «Выбирай»-25000 экз., «Город Н»-12000 экз., «Инфомобиль»-10000 экз.; Деловой квартал -8400 экз., Теленеделя и другие ( 8 периодических изданий)
4. Размещение информации на рекламных щитах города пр. Стачки, ул. Малиновского, ул. Космонавтов(РЦ «Вавилония»), пр.Нагибина («Горизонт»);
5. Распространение информации в интернете на специализированных сайтах и в социальных сетях;
6. Распространение листовок посредством промо-раздачи: 10000 шт;
7. Размещение афиш по центральным улицам города.
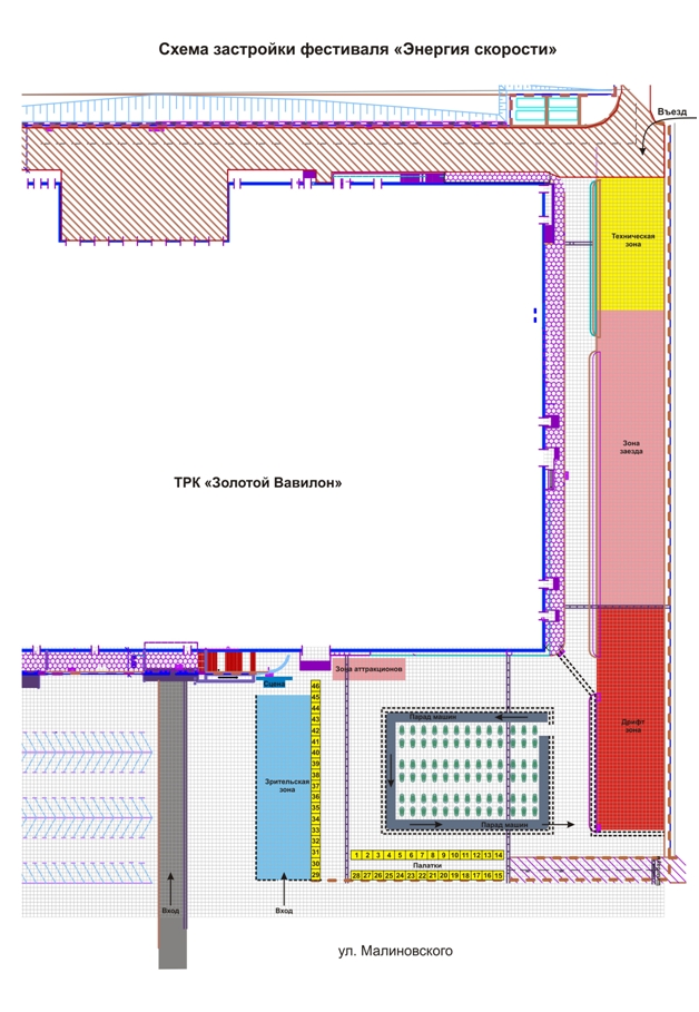
Схема проведения фестиваля.
Время проведения мероприятия: 10.00-17.00
Место проведения мероприятия: ТРК «Золотой Вавилон», г. Ростов-на-Дону, ул. Малиновского, 72
Рекламное агенство «Праздничный BaZarr», при поддержке автомобильного журнала «Инфомобиль», «Альтеза-клуб», BMW-клуб, «ToyotaBB-клуб», компаний: Школа Профессиональных каскадеров, автошкола «Автоград» и многих других автомобильных компаний приглашают Вас присоединиться и стать партнером или участником фестиваля «Энергия Скорости».
Самая большая площадка города, яркое незабываемое шоу, около 200 участников программы, более 3000 посетителей, в программе: авто-тюнинг, аэрография, дрифт-шоу, а также шоу экстремальной езды - все то, что заставит содрогнуться зрителей от волнения и захлестнувших эмоций.
Цель проведения мероприятия.
Проведение интересного крупномасштабного мероприятия, культурного события. Создание информационного повода СМИ, привлечение большой аудитории, потенциальных потребителей.
Задачи, решаемые проектом.
Социальные:
- Проведение крупномасштабного мероприятия стимулирующего интерес публики к проектам социального характера.
- Привлечение внимания общественности к проблеме проявления взаимной вежливости водителей, а также культуре вождения, к проблеме неоправданного риска на дорогах, порой приводящему к серьезным отрицательным последствиям.
- Благотворительный сбор денежных средств на строительство спортивного комплекса для воспитанников детского дома.
Коммерческие:
- Проведение крупномасштабной рекламной кампании;
-Привлечение большого количества потенциальных потребителей товаров и услуг компаний, заявленных в проекте и, как следствие, увеличение объема продаж;
- Создание положительного имиджа компаний, участников акций;
- Проведение целенаправленных рекламных акций во время проведения мероприятия.
Программа мероприятия:
- выставка «Авто-тюнинг» - около 100 профессионально тюнингованных автомобилей предстанут перед глазами зрителей, поражая мощью мотора, оригинальностью форм, скоростными возможностями;
- Выставка «Аэрография»- искустно исполненные картины на корпусе автомобилей, буйство красок и оригинальность идей художников, все то, что обычно не встретишь на дорогах;
Специальный конкурс для всех желающих в рамках выставки- любой желающий может представить на суд зрителей свои непрофессиональные авторские работы: приветствуется оригинальность и новизна идей. Победитель конкурса ярко и оригинально расписавший свое авто на глазах у изумленной публики получит специальный приз от спонсоров и организаторов фестиваля. Особо приветствуется аэрография на корпусах стареньких авто;
- Демонстрация навыков экстремальной езды. Профессиональные каскадеры и гонщики продемонстрируют для гостей праздников специальные навыки вождения: дрифт-шоу, экстремальная езда, захватывающие трюки;
- Демонстрация навыков езды самых юных участников шоу- учеников детской автошколы «Автоград»;
- Специальная конкурсная программа для гостей шоу, а также розыгрыш призов для всех пришедших на праздник;
- Розыгрыш призов;
- Запись на Тест-Драйвы;
А так же: Выступление танцевальных коллективов, музыкальных групп, очаровательные девушки гоу-гоу, профессиональная фотосъемка для всех желающих, демонстрации видеороликов с показательных выступлений.
Предлагаем Вам принять участие в Авто-фестивале в качестве спонсора, генерального спонсора или партнера мероприятия.
Рекламная кампания:
1. Размещение информации об акции на ТВ-каналах «СТС», «Рен-ТВ», бегущая строка;
2. Размещение информации на радиостанциях
3. Размещение информации в периодических изданиях: «Выбирай»-25000 экз., «Город Н»-12000 экз., «Инфомобиль»-10000 экз.; Деловой квартал -8400 экз., Теленеделя и другие ( 8 периодических изданий)
4. Размещение информации на рекламных щитах города пр. Стачки, ул. Малиновского, ул. Космонавтов(РЦ «Вавилония»), пр.Нагибина («Горизонт»);
5. Распространение информации в интернете на специализированных сайтах и в социальных сетях;
6. Распространение листовок посредством промо-раздачи: 10000 шт;
7. Размещение афиш по центральным улицам города.
Схема проведения фестиваля.
-
ДиМRost
- Администратор
- Сообщения: 7154
- Зарегистрирован: 04 дек 2008, 12:56
- Мой автомобиль: Yeti
- Мой автомобиль: Большой
- Год выпуска авто: 2014
- Двигатель: 210 лошадок
- Откуда: СЖМ
- Контактная информация:
Re: Фестиваль «Энергия скорости»
зелеными точками указаны места расстановки автомобилей клубов.
Кто сейчас на конференции
Сейчас этот форум просматривают: нет зарегистрированных пользователей и 3 гостя



